The Windsor

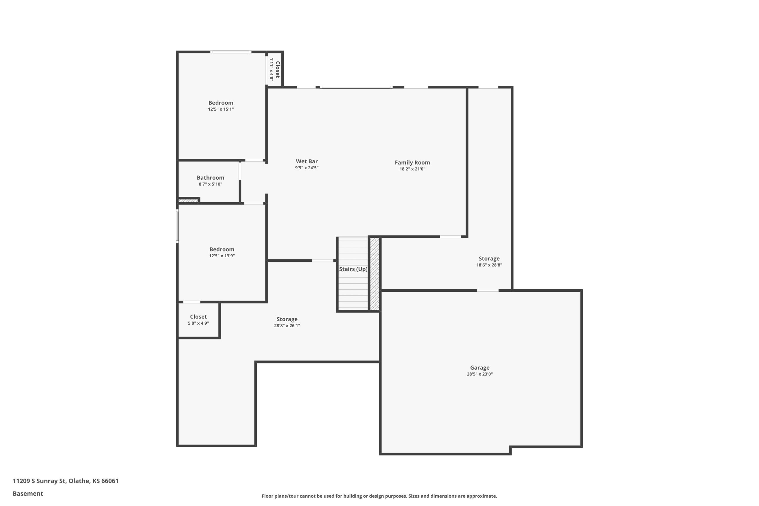
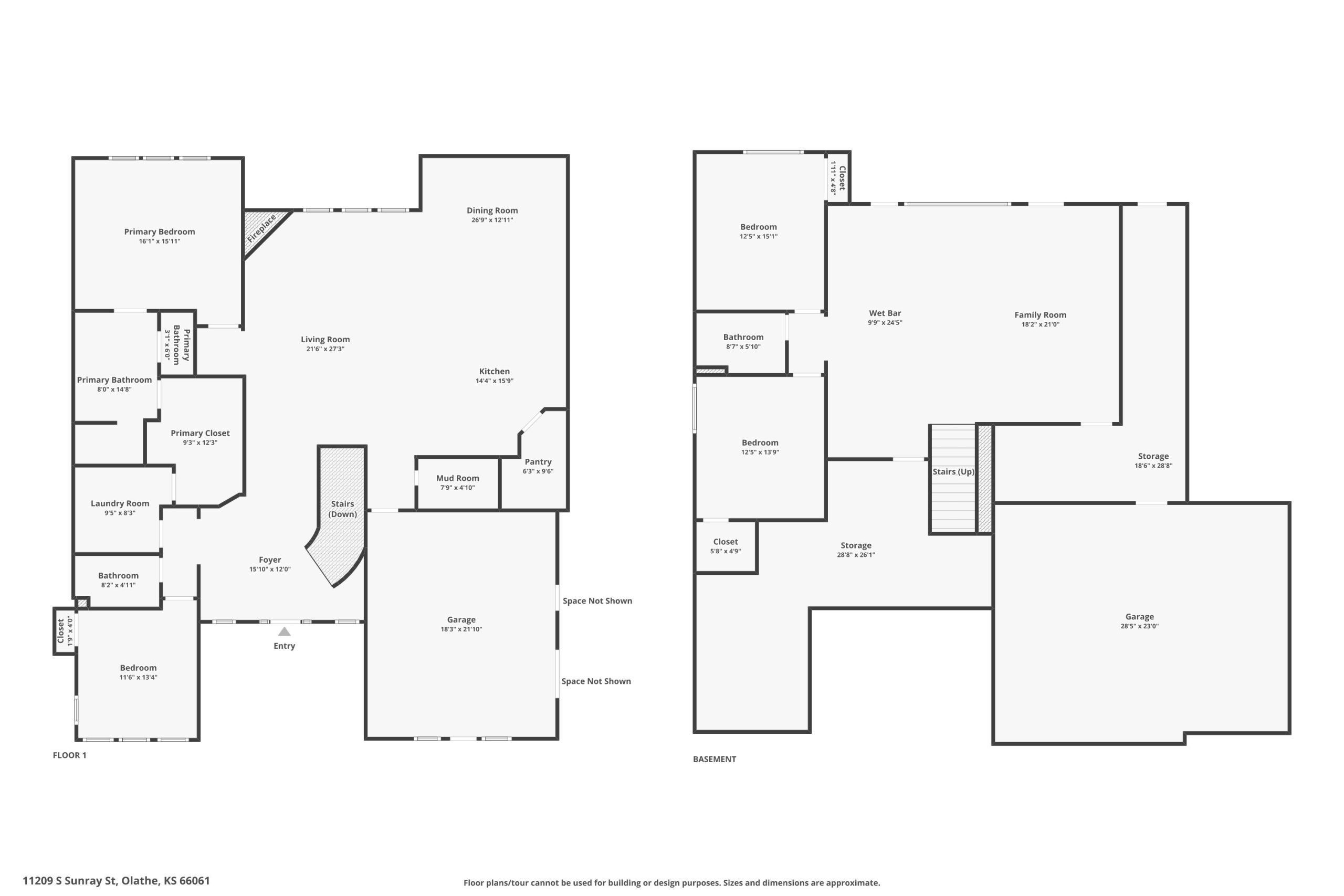
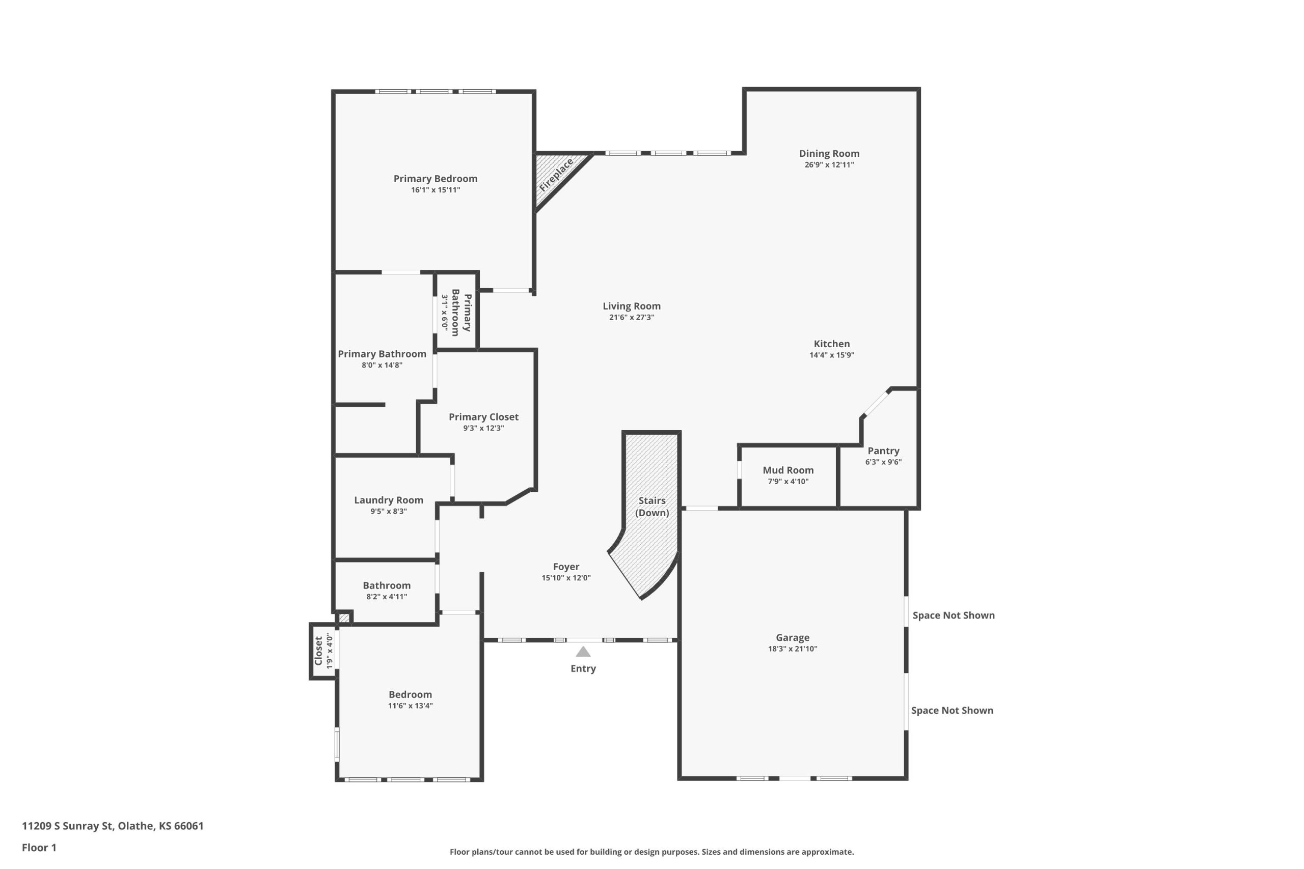
Total SQFT: 3,200       Beds: 4       Baths: 3        Garages: 3          Address: 11209 S. Sunray Drive, Olathe, KS 66061

Interested in additional information? Please contact our sales team!

Prairie Canyon

Sales Office Hours: Our furnished models are open from noon to 5 PM daily

Address: 11209 South Sunray Drive, Olathe, KS 66061 (Off College Blvd, 1 block west of 7 Highway ... look for yellow "NEW HOMES" flag on the south side of College Blvd)

Office: 913-429-8216

Email: sales@prairiecanyonks.com

Community Experts: Jeff Sheppard C#913-707-7437 Randi Platko C#913-530-0587